Apartament 3 camere tip 1

O opțiune perfectă pentru familiile cu copii, acest apartament cu trei camere ultra spațios, se adaptează perfect nevoilor tale.

Suprafață totală: 83.40 m²

Camera de zi = 24.30 m²
Bucătărie = 12.00 m²
Dormitor 1 = 12.35 m²
Baie 1 = 4.25 m²
Dormitor 2 = 15.78 m²
Baie 2 = 4.93 m²
Balcon = 9.20 m²
Hol = 8.83 m²
Cămară = 0.96 m²

+

Boxă depozitare subsol (La cerere)
Loc de parcare


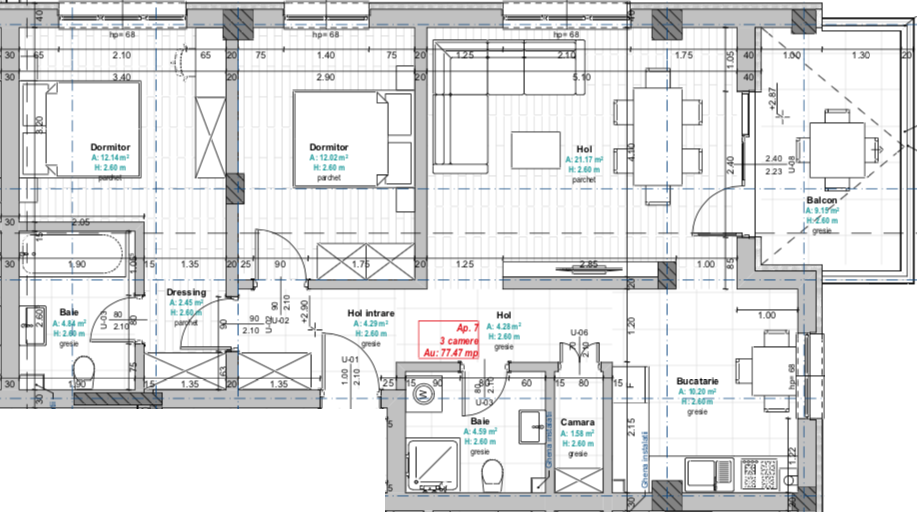
Apartament 3 camere tip 2

Indiferent dacă vrei să servești micul dejun împreună cu partenerul, să te odihnești după o zi obosită, sau vrei să vezi un film împreună cu prietenii, acest apartament cu trei camere este perfect configurat astfel încât să răspundă nevoilor tale cotidiene.

Suprafață totală: 77.47 m²

Camera de zi = 21.17 m²
Bucătărie = 10.29 m²
Dormitor 1 = 12.14 m²
Baie 1 = 4.84 m²
Dormitor 2 = 12.02 m²
Baie 2 = 4.59 m²
Balcon = 9.19 m²
Hol = 8.60 m²
Cămară = 1.58 m²
Dressing = 2.45 m²

+

Boxă depozitare subsol (La cerere)
Loc de parcare