Casa tip 1 P+E

Visul familiei tale, devenit realitate, construit în comunitatea Transalpina Residence Sebeș.


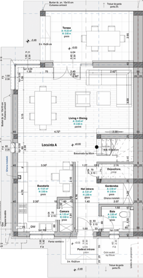
PARTER:
Living + Dining = 35.45 m²
Bucătărie = 11.81 m²
Baie = 2.85 m²
Terasa = 15.22 m²
Hol = 5.51 m²
Cămară = 1.53 m²
Garderobă = 2.59 m²
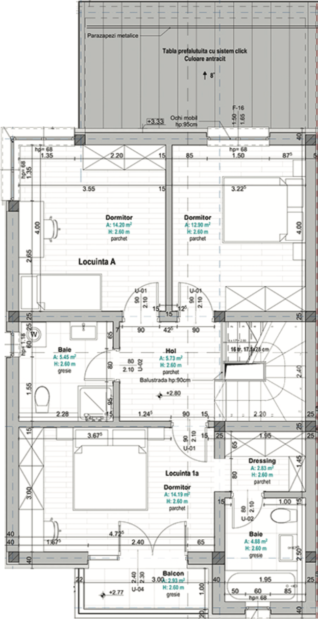
ETAJ:
Dormitor 1 = 14.20 m²
Dormitor 2 = 12.90 m²
Dormitor 2 = 14.19 m²
Baie 1 = 5.45 m²
Baie 2 = 4.88 m²
Balcon = 2.93 m²
Hol = 5.73 m²
Dressing = 2.83 m²

Casa tip 2 P+E

Bucură-te de priveliștea peste oraș alături de familie și prieteni în unul dintre cele mai spectaculoase apartamente din oferta noastră. Beneficiezi de 3 dormitoare, 3 băi, o terasă de peste 50 mp și un living suficient de spațios pentru toată familia.


PARTER:
Living = 27.93 m²
Bucătărie = 14.86 m²
Baie = 2.33 m²
Terasa = 11.19 m²
Hol = 4.50 m²
Cămară = 1.66 m²
Garderobă = 2.28 m²
ETAJ:
Dormitor 1 = 13.47 m²
Dormitor 2 = 13.02 m²
Dormitor 3 = 11.95 m²
Baie 1 = 4.42 m
²Baie 2 = 5.24 m²
Balcon = 3.20 m²
Hol = 4.91 m²
Dressing = 4.87 m²